The brilliantly-silver, rounded-edge Airstream still gets grins from Golden Era old-timers who recall crisscrossing the country from Mt. Rushmore to Plymouth Rock in their Bonneville station wagons and “drag-a-longs.”Today, estimates are that from 50 to 70% of every Airstream ever built is still road-worthy. They are the home, office, guesthouse, mobile sales tool, and vintage RV for thousands of owners.
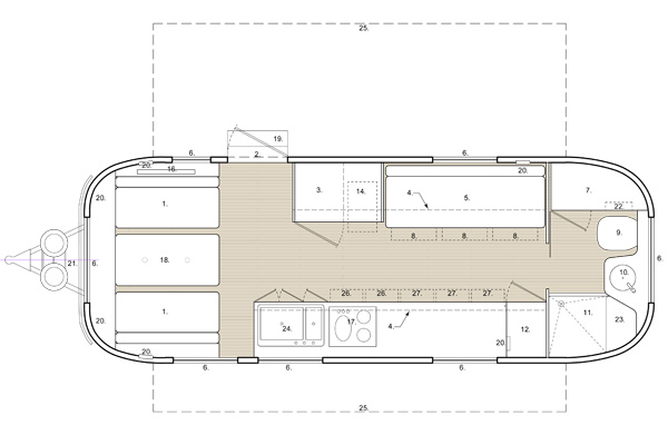
Just less than one year ago, this 25-foot 1978 Tradewind became the “front-door-to-the-great-outdoors” for this nostalgic 27-year old sustainably-minded Santa Barbara-based architect.
What started out as “…just a hobby,” less than a year earlier, has burgeoned into a booming business that creates highly-efficient, mobile living and working spaces. The founder, Matthew Hofmann, started out renovating an Airstream as a hobby. Soon, it segued into a sustainable experiment. Today, it is a high-design business that crafts customized trailers for the well-heeled and well-lived.
His first Airstream was purchased in April of 2010. Hofmann says it was renovated in the spirit of small space, low-cost, sustainable and efficient living, starting with recycled waste, reused and locally-produced materials installed by local artisans.
The interior featured bamboo countertops, table, and floors; recycled glass tile in the bathroom; durable fabrics; low-VOC paints and stains; with an unmistakably-contemporary design and clean lines. (Click here for a complete list of materials.)
In September of 2011, Hofmann’s first Airstream renovation was purchased by a former pro sports athlete. “He’s going to explore the US,” said Hofmann. “I think that’s the dream for most of our clients.”
So, why did Hofmann remodel a 150-square-foot trailer in his spare time while designing million dollar villas by day?
“I was at a point in my life where wanted to live with less” said Hofmann, who parked the Airstream on a Montecito home site that burned down in the Tea Fire. “Two years ago I moved from a large house. And downsizing has a way of making you consider the value of possessions. I wondered, while looking at the massive truckload of things, how would I feel if this truck ran off a cliff and all was lost? My stuff was beginning to feel like a burden, like luggage. Things that I needed to take around with me wherever I went; a truckload-sized ball and chain.”
While dramatic life-changes such as firestorms and the Great Recession have driven millions of Americans into meager lives, living with less didn’t mean enjoying life less for Hofmann. He actually prefers it, and it’s not hard to see why.
Hofmann kicked off his quest for inner peace at the most logical place – CraigsList. He found an Airstream in “fair condition” and a four-digit deal was struck. One dark and stormy night in Mira Loma, he rescued the abandoned rattletrap from behind a chain link fence.”
“Crap!” he recalls saying to himself. “I’d just written a sizeable check for what was a glorified dog house. The trailer was swaying back and forth along rain-soaked 101, like the pendulum of doubt pounding in my brain.”
The body was solid, but inside the trailer was a mess. “From the carpet of dog fur, there’s no doubt the last resident was a white pit bull.”
***
As of the Fall of 2011, Hofmann Architecture, aka, HofArc, has sprung into a full-service Santa Barbara-based residential design and small space renovation firm with a unique Airstream renovation niche’.
The design firm has quickly caught the attention of Airstream enthusiasts around the globe – expanding with five custom Airstreams in production for clients as far away as Australia and Great Britain. HofArc’s Airstreams are a small, yet growing part of the firm’s residential design workload.
Hofmann’s Airstreams are a work of art that’s ultra eco-friendly, emits cool tones, is tech wise, and crammed with creative details.



Matthew, your work is really beautiful! If you’re around for my retirement, I’m going to commission one of these Airstream beauties from you!
We’re ready — just let us know when you are ready to retire and live the good life in an Airstream.
[...] Matthew Hofmann did such a remarkable job renovating a 1978 Airstream trailer into a home and office for himself [...]
[...] Matthew Hofmann did such a remarkable job renovating a 1978 Airstream trailer into a home and office for himself [...]
[...] Matthew Hofmann did such a remarkable job renovating a 1978 Airstream trailer into a home and office for himself [...]