It’s hard to believe this aging 1972 Airstream’s pushing 40. It looks as fit and trim as a teenager. A midlife makeover has blessed this 27-foot Tradewind with an age-defying renovation.
Compared to its thousands of other shiny riveted siblings criss-crossing the country it’s just a youngster. Airstream, still an all-American company, turns 80 next year.
Matthew Hofmann, a 28-year-old Central California Coast-based architect, is the master craftsman who’s turning back the clock. This is his second high-design Airstream project to be released this year. Hofmann Architecture (www. HofArc.com), a full-service Santa Barbara residential design and small space renovation firm, is capturing the attention of Airstream enthusiasts around the globe.
* * *
While the ubiquitous Airstream has attracted the eye of avant trailer lovers around the world, the interiors were known for nothing more than ordinary. Hofmann is intent on changing that reputation.
“Currently, we have five Airstreams in various stages of design and production,” said Hofmann. “We’re even designing an ‘Aussie outback model’ for an Australian client.” One of the unique requirements calls for the front door to be moved to the opposite side to accommodate left-lane travel.” (More on this unique Airstream renovation later).
Hofmann’s version 2.0 is truly better in several significant ways, offering more open space, a larger bathroom, and an office desk. The spatial efficiency leaves even the most discriminating minimalist slack jawed. The obvious question is: “How’d he do it?”
Even Henry Houdini would be proud.
***
There’s a lot that hasn’t changed inside and that’s good because so much of what he designed into the previous 25-foot 1978 Tradewind was quite simply solid design. Like its older sister, this one’s still sleek and contemporary, with very clean lines. “This one was fun to build,” he says with a grin. “It was also a step forward in the small space evolutionary design process.”
In Hofmann’s previous project he combined the workspace cubicle, dining table and second bed in the forward convertible sleeping space - clever, but truly not an earth-shattering step.
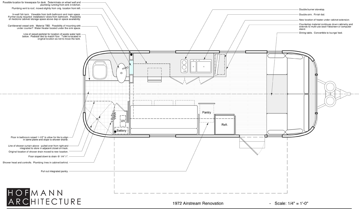
This time Hofmann found four feet of linear counter-height deck space for a built-in desk, mid-level chair and three drawers situated between the bathroom and kitchen.
***
A bit about the client’s requirements would be in order here, because this trailer was designed as a “guest house.” In fact, the client ordered two Airstreams. This first edition has already been located on a recently-graded pad setting among a modest forest of avocado trees. A view of the Pacific Ocean is framed in a window that can be seen while sitting at the built-in desk.
“The client wanted a place to work without having to disturb the dining area or disassemble either of the sleeping spaces,” said Hofmann. “She also wanted something durable because she lives in her jeans and cowboy boots on a 200-acre avocado ranch with another 40 acres for cattle and a couple horses.”
***
The client has plans to decorate the interior with her two passions: artwork of wild horses and Rottweilers. She and her family are avid horseback riders on their property. And on weekends you might see one of their massive Rottweilers at any number of dog shows throughout the West.
“I want this to be a place where my guests feel comfortable,” said the client. “I want them to be able to relax, but not worry about breaking something or getting it dirty.”
The living space also needed to be spacious, “because I’m pretty social,” she added. “Friends are always coming and going and these two Airstreams will serve as guest homes and provide flexible options for staying home or hitting the road.”
***
One of Hofmann’s signatures is his close attention to bathroom details and this project again offers a significant upgrade.
A high-design brushed stainless steel sink and faucet sits on an elegantly curved deck that faces another nifty addition – a see-through fish tank that’s visible from the office and bathroom, with only the fish seeing what’s on each side.
Hofmann – who stands 6’4” – offers a refreshing change pace in the full height, stand-up shower. The lightweight 1/8-inch tiles span the shower basin and seal in the water more than a foot up three sides. And Hofmann guarantees the shower won’t leak thanks to an alternative tile installation method that uses a foam backer with acrylic adhesive to substrate.
***
A centrally-located hi-def 19-inch video monitor displays either DVDs or streamed Netflix videos from anywhere in the trailer. A surround sound audio system provides more than enough sound support.
The monitor swivels on a pullout arm for optimal viewing adjustments and tucks away neatly behind a rollup cabinet.
Although the client’s ranch seldom climbs over 90 degrees and cool ocean breezes provide ample circulation, a low-profile air conditioner keeps the cabin comfortably cool when needed for trips to the desert.
***
The main sleeping area features a convertible sofa that folds down into a queen-sized bed. There’s ample room to pass by slumbering guests to access the rear bathroom. The coach’s custom-made sofas feature durable fabrics that were selected by the client. The understated pattern compliments the contemporary motif.
***
Among many sustainable features, is the Cali Bamboo flooring. Although travel trailers don’t qualify as a LEED-qualified project, this abode would earn points for reuse and energy efficiency thanks to the 12-volt ceiling lights and refinished overhead tambour rollup cabinets. The backlit ceiling lights emit a soft glow against the brilliant white surfaces. The cabinets were painted with zero-VOC earth-friendly finishes - together they create a futuristic tone. Three LED puck lights over the kitchen/office stubbornly keep electric usage down and specific task lighting cranked up.
***
Hofmann is LEED-certified and his sustainable training emphasizes the reuse and repurpose of every material that was disposed. “Construction waste management is one of the most effective ways to be green,” said Hofmann. “We hand-separate the copper plumbing and aluminum trim pieces for delivery to the local recycling center.”
Reusable cabinets (pictured in a BEFORE photo at left), roll-up tambours, bed and door hardware (pictured below at right), window frames, electronics, and decorative accessories from the trailer are stored for future use.
According to Hofmann, the original 40-year old refrigerators are heavy and terribly inefficient. “I sold it on CraigsList to a guy who’s living off the grid in a surf shack along the coast near Refugio,” added Hofmann. “He’s using propane to power it.”
***
The dining area has been expanded to seat six comfortably at the table, with the addition of two fold-away chairs that adjoin the kitchen area. Underneath the left and right access benches are two “carry-on luggage-sized drawers,” as Hofmann calls them. “They’re for guests to store their travel bags.” The drawer guides, as are all installed drawers, constructed with silent closing Hafele German-crafted hardware that’s sturdy enough for 50 lbs. of gear.
***
Speaking of culinary arts, there wasn’t any skimping on the kitchen sink, either. The extra-deep stainless steel commercial-style basin will shock seasoned RVers. Most trailer kitchen sinks barely get both hands wet at the same time. (The original kitchen and dining area are pictured at left in a BEFORE photo.) An adequate pullout food pantry fits next to a generous refrigerator. The 2-burner propane stove completes a no-hassles, no-nonsense food prep package.
***
Hofmann Architecture’s second Airstream project is a work of art that’s ultra eco-friendly, emits cool tones, is tech wise, and crammed with creative details.
Click here for a larger JPG version of the floorplan (BELOW).




[...] 1972 Tradewind Airstream Guesthouse Architect: Hofmann Architecture Website: [...]
Matthew,
You have thought of everything on this Airstream “guest house” renovation, including the depth of the drawers to keep the guest travel suitcases. I was especially impressed by the extra deep gourment sink, too. Stellar job!
Why thank you! Keep checking back, we have some great stuff in the works that I’m excited to share with you.
Hi, just wanted to let you know I really like what you’ve done with the airstream. I would be interested in exploring the feasibility of you taking a look at my 97 34′ Excella. It’s all original in excellent shape, actually like brand new. I bought it from the original owner about a month ago. It just looks like 1997 and needs to be made more current. If you ever work up plans for a 34′ i would like to talk with you. Thank you for you time and keep up the great work.
Thanks, Mark. Glad you like what we’ve done… and we’re enjoying the process, too! We’d be happy to talk to you about doing a redesign of your ’97 Excella 34′ interior. Just give me (Wally) a call and we can discuss it.
I’ve been looking at log cabin Park Models for awhile, I want to down size now that 1′m retired. But I don’t want to give up all my utilities. Dishwasher I could live without, not a washer and dryer. I like the stove-top micro combo and bath ideas. What is the biggest air stream, what is the cost of renovations. Bamboo flooring also I like, what size truck do you need to pull the mobile home? I like a more country look to my home, what do you think? TY
Check out this link to see the various years, models and sizes of Airstreams. There are several over 30-feet in length, which are very comfortable sizes for a single person. And we have a couple of nice Sovereigns right now that we can custom design and renovate the interior for you in the style you prefer. Plus, a stackable washer/dryer will fit just fine. We can talk more about your needs and budget. Feel free to give me a call anytime. -wh
All I can say is WOW… you have scratched an itch of many of my peers.. military retirees who would love a small, simple, contemporary Airstream trailer to “see the world”… without dragging around all the “stuff”…
Can you provide a rough idea of a typical cost for a renovated trailer (towable with 6 cyl 1/2 ton P/U) for 2 people (queen-size bed) with awning, stackable washer/dryer, sink, refrig, 2 burners, microwave, shower, and toilet?
Best of luck - I love your contemporary, small structures as well!
THANKS FOR THE NICE COMMENTS, STEVE. Glad you like it…
Our Airstream renovations range from 25k for a fully-restored retro version to 70k+ for a completely-custom design. Our latest creation is a 17′ Caravel that will be 100% off-the-grid with flexible PVs on the roof. We have a bunch of sizes and model years in stock. Let us know what you’re looking for and we’ll give you a price.
btw, the 1978 Matthew lived in was recently sold in the 60k’s to a retired pro football player who’s traveling the country right now. So, if you see it HONK!
We just bought a 1975 28′ Argus and look forward to renovating it in line with this design here. Awesome designs and feel by the way! Exactly what we’re looking for.
Curious: I have a 24″ iMac and am looking to mount it like you did on your airstream. How did you mount it (to what specifically) and what arm did you use? I’m assuming you had to remove the iMac’s original stand. Also, and this has worried me, when driving the trailer, wouldn’t all the bouncing and shaking compromise the iMac (specifically it’s hard-drive) computer systems? How do you deal with that?
Thanks,
Peter
Two links for you: The Humanscale M8 Monitor Arm and the Apple VESA iMac/ Monitor Mount
While on the road, I usually take the computer off the arm and put it in-between two couch cushions, very easy. I have, however, used an elastic strap to secure the monitor arm in the downward position wrapped by a soft towel that has kept it nice and cozy during travel.
Hope this helps!
Thanks Matt. Just revisited this post. I have since sold the iMac and replaced it with a 17″ MacBook pro as we were already travelling and I was tired of constantly boxing the iMac. But thanks for the links. I still think that we’ll ad a secondary larger screen for watching and working.
I love design of your Airstream’s. I am actually in the porcess to taking a project like this. I too believe in that “less is more” ideaology. I was wondering in this guest house set up, with the clean lines and white running though the trailor, how/ where would you put an oven if it were requested by your client?
Or would you use a toaster oven?
Thanks!
An oven is very much a possibility. Lots of options. There are stand alone models, or those that are integrated into the stovetop. Convection, basic, toaster… you name it. The toaster oven is also a viable alternative, though not a good choice for extended stays away from electricity.
I LOVE your work!
Did you do away with your sink drain vent?
I have a 1966 26′ Overlander and I want to remove the partition between the “bedroom” and the living/kitchen area to increase counter space…but if I kept the vent as is I would have a 2″ pipe jetting up through the middle of the counter.
So curious how you worked this…
All drain vents are maintained. We are actually able to vent through the inner and outer skin of the trailer. This technique is often how this is accomplished.
I am wondering about the lovely tilework in the bathrooms. I just bought an Avion, 25′, and there is some old vinyl wallpaper I’d love to improve upon. Do I have to use some horribly toxic materials to strip it? (if it will even come off? This is a ’79 trailer and I’ll bet the vinyl paper is original). Is there a way I could use some kind of decorative sheet metal or would it condense too much? Thanks! I don’t have big bucks to do the kind of work you have done with your trailers, but I have nice original “luan” cabinets, a good-enough pergo floor, and all systems work.
If it’s on wood, the wallpaper will come off with a heat gun and paint scraper. If it’s the original factory vinyl on the aluminum you’ll need to sand it with an orbital sander then repaint with a good no-VOC interior paint. Good luck!
I just wanted to say that you guys rock! Matt’s first Airstream was/ is our main inspiration for the ’86 Excella we’re restoring right now. Once we’re done (hopefully in the next couple of months!), my wife and I are planning on full-timing in it for a couple of years until we’re ready to have some kiddos.
Thanks for the inspiration, and keep up the good work!
-Dustin & Dom
Very cool… I fully endorse living in an Airstream for a year (or more . You’ll learn a lot about yourself, each other and this beautiful country. If you have the right attitude, you’ll meet interesting people, love the experience and be glad you did it for the rest of your life. Let us know if you have any questions through the renovation, and send me some updates from the road. All the best…
Nice work,
You mentioned a new technique for mounting tiles to foam. I am renovating a 22′ 1977 Argosy and would like to explore this option for the bath. Can you be a little more specific in materials and methods?
I’d use a solid 1/2″ (min) marine plywood base. Use lots of glue when securing. Here’s a good additive for your thinset: http://www.laticrete.com/Portals/0/datasheets/lds2660.pdf I like using an AVM Paste 750 undertile waterproofing membrane. Any flexible grout wil do. And remember, Airstreams are always on the move, and so is the interior, so the tiles must be small (1″ x 1″) to minimize cracking. Cheers! Send me photos when she’s done.
Hello Wally,
Did you have to use some type of foam backing to reduce the flexibility?
Hardibacker or new plywood should be used if there is any water damage or unstable backing on tile surfaces.
Hi Guys,
Really fantastic job with the renovation…looks beautiful. I’m working on remodeling my own ’75 Argosy and I have a couple of quick questions for you:
Where did you find the large lights that are on either side of the A/C unit in the center ceiling panel? I’m assuming they replaced the original dome lights? Are they 12v?
Also, it seems as though you kept the original upper tambour cabinets…did you simply paint them white? Know of anywhere you can buy those used/new?
What you see aren’t lights at all, just frosted plexi panels installed with spacers. We used the same lights and hardware for vent and light switch. And, yup, the tambours are just painted white. If you need replacement tambours just go to google and find your favorite tambour supplier. Go with 1/2″ x 5/15″ thick slats. I prefer fabric backed.
Hi Matthew;
I just saw a link to you (again in Residential Architect magazine. It was in an Icynene/RA ad on pg 8, april issue - if you wanted to know. Did you, have you used the spray foam in any of your Airstream redo’s?? I guessin’ you’d have to remove inside skin. Just curious.
richard
Hey Richard,
Thanks for noticing the article. We haven’t seen that one, yet. Spray foam? We rarely use it — maybe sometimes to seal a small hole between the lower chassis and outer skin. We prefer to seal infestation access with aluminum because those darned rodents will eat just about anything else!
Regarding the inside skin… we rarely remove it. We’ll pull off some rivets now and then to rewire, but not entire panels. There are times when we remove the plastic front or rear cabinets and surrounding shrouding for design reasons, but that’s about the extent of it.
Beautiful work. Putting bamboo flooring in my 1980 25 International. Do you glue, nail or recommend floating floors. Thanks.
We have floated floors in a couple of our units, but if you do be sure to leave a 3/8″ gap around the edges for expansion. However, we prefer to glue and nail our Airstream renovations with 1/2″ flooring. These little units are always on the move and we don’t want our floor moving, too. Send us photos of your finished work — we’d love to see it. Enjoy!
We are considering purchasing a 1972 25ft Tradewind and would like to do the same. What is the true cost for a renovation? Kitchen and bathroom especially… Maybe I should rephrase, what is a good budget for such a project? We are currently in Florida.
Thanks
Are you paying subs or doing the work yourself? Materials will be about $24k, labor will run around $38k, depending on your hourly rates. We base our rates on CA labor. About $10k of the labor cost is for trailer acquisition, yard rent during construction, and design fees.
Congrats on the great design work and execution. When you are using the glass tile, what is the application process and what type of grout.
I am interested in guarding against cracked tile and grout.
Thanks in advance.
These recycled 1/8″ glass tiles have turned out to be a real winner because they’re not only lightweight and thin, but they’re also very attractive. The manufacturer, CoolTiles, carries many color combinations, too.
Depending on the rigidity of the backing we either use a Hardibacker (if it’s soft) or we brush on a substrate (if it’s nice and rigid) called AVM Paste 750 Undertile Waterproofing Membrane. It’s also a good idea to use a fabric mesh at the joints between floor/wall and wall/wall surfaces to strengthen it.
The reality is you aren’t going to stop the different planes of a trailer in motion — that’s just the nature of these rolling beasts. The secret is to start with good strong construction. We’ve heard of people using a flexible caulk in these joint lines, but we’re not advocating it.
Then just use a flexbond mortar to lay the tiles down. Let it dry overnight and apply a non-sanded grout. Let that dry, then seal it and you’re ready to roll.
Be sure to send us some photos of the finished product. We’d love to see your work.
Your Airstream renovations are absolutely fabulous! I am so impressed by the clean design and efficiency of space. Well done!
Thank you.
Your designs and finished Airstreams are really inspiring. My wife and I have recently bought a 75 sovriegn and plan to fix it up and full time in it. I travel a lot for work and can live pretty much where ever I want so this gives us some flexiblity. What type of paint and or primer do you recommend? Thanks again for the inspiring work.
We aren’t pushing any one brand — just be sure it’s a good quality NO VOC semi-gloss paint. What is also important is to clean the surface with a good degreaser, then rotary sand it, apply a base coat primer, then two top coats. We have an airless sprayer, but you can brush it on. We also caulk all the joints to hide any gaps. Enjoy!
U hooked me while surfing airstreams. I’m thinking we’re a fit & I’m very interested in a 22-25 ft project. My time frame is a winter build for an April delivery. Is this something reasonable to consider? Of course there is the cost ( damm) ,but I’d like to go to the next step in ur process. Regards orrin
Thanks for contacting us. Your plan sounds very reasonable. The first step is for us to speak directly about your needs and a suitable budget.
A 22-25 foot Airstream is a very workable size for most people. We’ve been very successful creating custom vintage Airstreams. We can help with all of these steps from beginning to completion. We have clients throughout the US and overseas. Let’s talk!